• 草莓视频久久免费下载,草莓视频黄版,成人黄色草莓视频,草莓视频APP在线观看下载

    手机banner

    产品分类

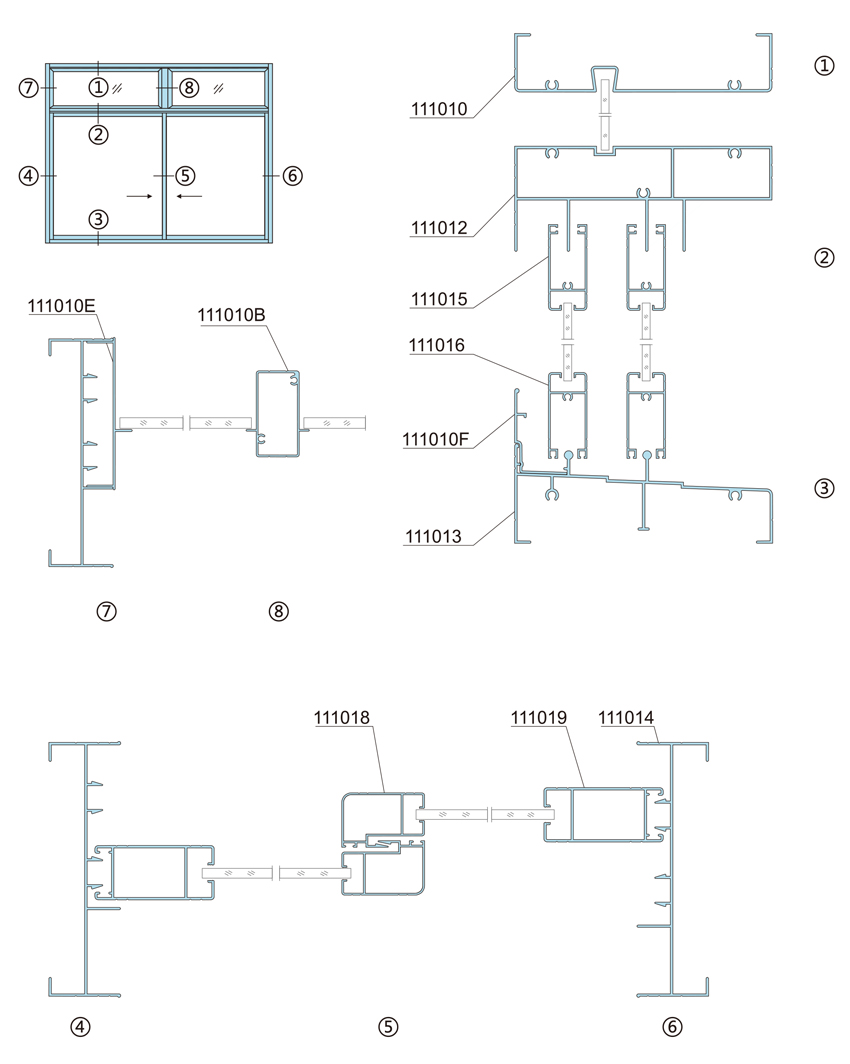
    111010系列推拉窗

    111010系列推拉窗

    • 详细介绍

    111010-1.jpg



    铝合金推拉窗产品特点:

    1.互动效果好,噪音小,无地轨,容易清洁卫生。

    2.特色工艺玻璃配合钛镁铝合金型材精制而成,半透或不透的玻璃展现个性的空间;

    3.不变形、不变色、不易损伤,节约空间,搭配灵活,简单美观。

    适用范围:阳台间隔、书房间隔、厨房间隔、卧室间隔、办公室间隔、客厅与餐厅间隔、卫生间等

    耐久性好,使用维修方便。铝合金门窗不锈蚀,不褪色、不脱落、几乎无需维修,零配件使用寿命极长。装饰效果好。铝合金门窗表面都有人工氧化膜并着色形成复合膜层,这种复合膜不仅耐蚀,耐磨,有一定的防火力,而且光泽度极高。铝合金门窗由于自重轻,加工装配精密,准确,因而开闭轻便灵活,无噪声。符合现代人装修追求高雅风格的趋势。


    本文网址: http://www.tjhaizhong.com/product/688.html

    关键词: 推拉窗结构,铝合金推拉窗,推拉窗厂家

    上一篇: 110310系列推拉窗
    下一篇:112010系列推拉窗
    在线客服
    二维码

    扫描二维码

    分享 一键分享
    网站地图